奈良県奈良市左京3-17-7
南西角地のリノベーション物件!ゆとりある住居空間でのびのび暮らす!
- 販売価格
- 3,699 万円
- (消費税、リフォーム費用を含む)
- 月々支払い目安
- ― 円
- ※金り1.0%、返済期間35年、
元利均等方式で試算
- 住所
- 奈良県奈良市左京3-17-7
- 交通
- 近鉄京都線「高の原」駅 バス8分
「総合福祉センター」バス停下車徒歩5分
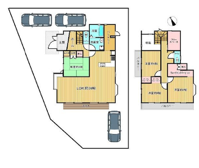
- 間取り
- 4SLDK
- 建築年月
- 1990年7月
- 土地面積
- 223.72㎡
- 建物面積
- 133.73㎡
- リフォーム
- クロス張替、フロアタイル張り、システムキッチン新調、お風呂新調、洗面化粧台新調、トイレ1.2F新調、ダウンライト新設、建具枠ごと新調、畳表替え、ふすま張替、障子張替、給湯器新調、分電盤新調、玄関扉新調、外壁屋根塗装、駐車スペース造成、ハウスクリーニング等
- 住所
- 奈良県奈良市左京3-17-7
- 交通
- 近鉄京都線「高の原」駅 バス8分
「総合福祉センター」バス停下車徒歩5分
- 間取り
- 4SLDK
- 建築年月
- 1990年7月
- 土地面積
- 223.72㎡
- 建物面積
- 133.73㎡
- 構造
- 木造2階建
- 都市計画
- 市街化区域
- 用途地域
- 第一種低層住居専用
- 建ぺい率
- 40
- 容積率
- 60
- 地目
- -
- 土地権利
- 所有権
- 接造状況
- 公道幅員8m 南側間口約6.7m
公道幅員7.9m 西側間口約16.1m
- 駐車場
- 3台可
- 車庫区分
- -
- 私道
- -
- 設備
- 上下水・都市ガス
- 取引態様
- 売主
- 小学校
- 奈良市立左京小学校
- 中学校
- 奈良市立平城東中学校
- 引渡
- 即時
- 取引有効期限
- -
- リフォーム
- クロス張替、フロアタイル張り、システムキッチン新調、お風呂新調、洗面化粧台新調、トイレ1.2F新調、ダウンライト新設、建具枠ごと新調、畳表替え、ふすま張替、障子張替、給湯器新調、分電盤新調、玄関扉新調、外壁屋根塗装、駐車スペース造成、ハウスクリーニング等
備考
※司法書士は売主の指定になります。
※情報と現状が相違する場合は、現状優先とします。
2026年3月23日 更新